Floor Plans - Riva Pointe in Weehawken, NJ
Riva Pointe in Weehawken, NJ
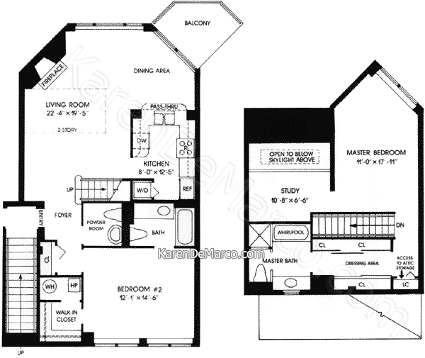
Floor plans for the Riva Pointe condominiums in Weehawken, New Jersey, a/k/a Riva Point
Floor plans for the Riva Pointe condominiums in Weehawken, New Jersey, a/k/a Riva Point
Karen DeMarco - Realtor®-Associate
Cell: 201-776-6762 • Send E-Mail
Sales Associate with
Coldwell Banker Realty - Pascack Valley Office
Donna Conte, Branch Vice President / Manager
50 Broadway, Hillsdale, NJ 07642 • 201-930-8820
